ERA Architects Inc. (2023)
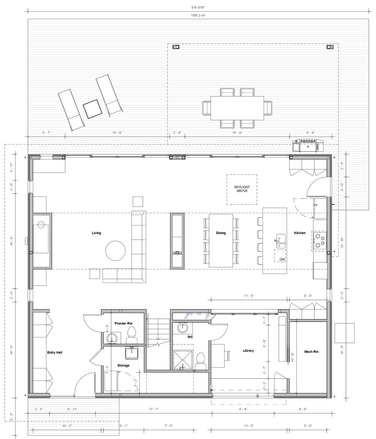
The homeowner approached our team to design and oversee construction of a new 3-bedroom, 2,700 sq.ft single-detached dwelling in Picton, Ontario. As project manager, I worked directly with the client to develop the design, prepare construction drawings and manage sub-consultants through weekly coordination meetings.
One distinctive design feature is the prominent ‘brow’ that wraps the building perimeter. This architectural feature creates a datum line that begins as a canopy over the front entrance, wraps around side and encloses the rooftop garden above. Working with the structural engineer, we developed a custom cantilevered joist detail that achieves the desired effect while supporting the added weight of a green roof.

Christine Reid Photography

Christine Reid Photography

Christine Reid Photography

Back to Top